


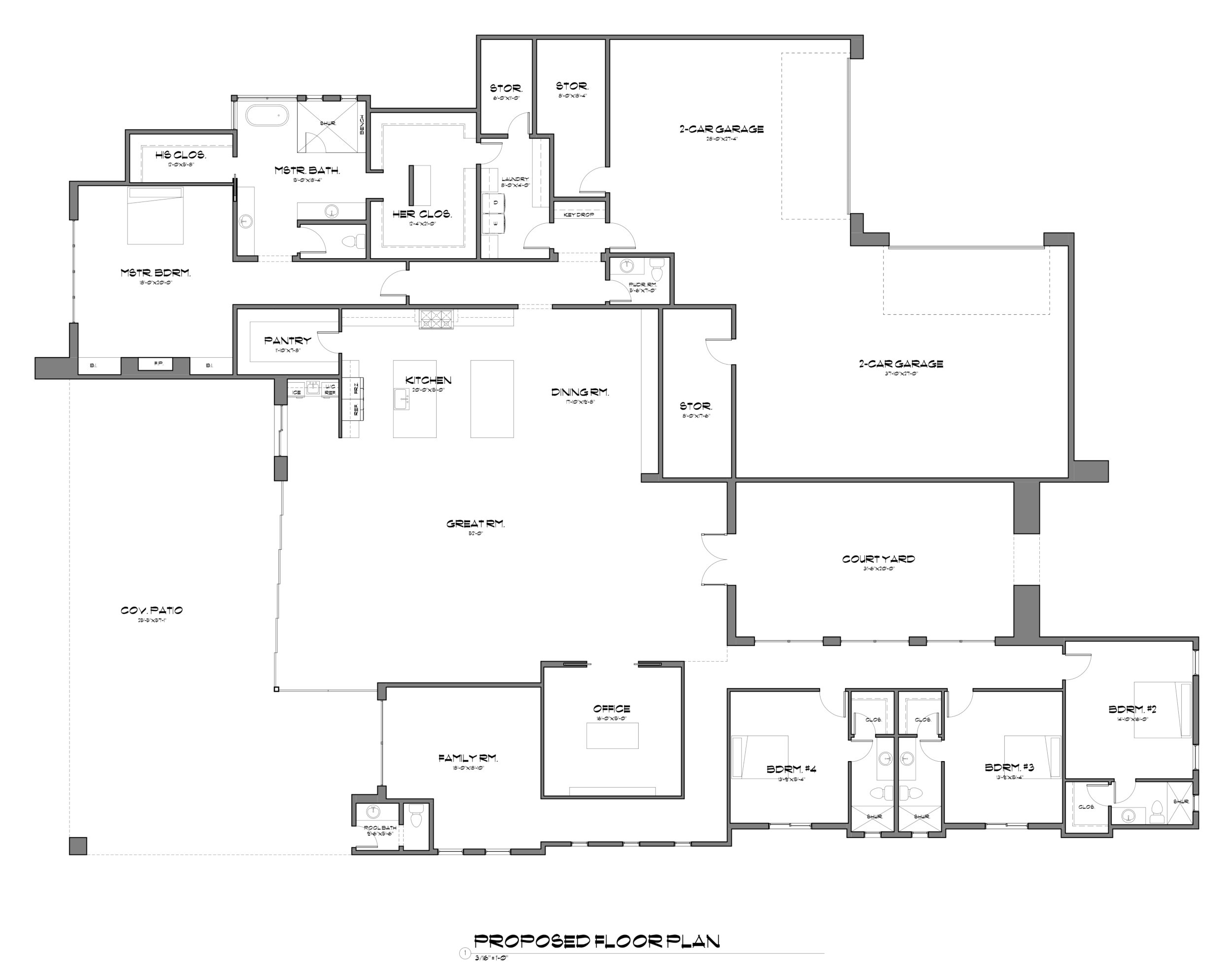
Construction beginning soon on a grand luxury estate in the prestigious Mirabel community. This 5,000+ sq ft home will include a private casita, refined architecture, and serene desert surroundings.
Let us create a custom home tailored to your unique vision and needs.